TOT PARKING

Especialistes en el Món del Garatge

Des de 1987

fa 33 anys

  +34  93 20 40 777

DEPARTAMENT D'ENGINYERIA

Les nostres oficines compten amb un Departament Tècnic format per Enginyers i Arquitectes capaços de buscar solucions tècniques a tots els reptes que se'ns presenten i que solucionen el problema dels nostres clients.

 

La nostra especialització, així com la llarga experiència, sempre ha estat centrada en el món del garatge. El que ens dóna un gran avantagte i un alt nivell d'èxit en el desenvolupament dels projectes del que ens fem càrrec i obtenim un altíssim grau de satisfacció en les solucions obtingudes.

Icono Gestió Icono legalització

GESTIÓ

La nostra oficina tècnica disposa de l'experiència per redactar, argumentar i sol·licitar qualsevol gestió amb els Estaments Municipals comptant amb el recolzament del nostre equip d'Enginyers i Arquitectes per aquestes tasques.

 

Tenint així la facilitat de confeccionar si cal els plànols i esquemes necessaris per a la gestió.

INSTÀNCIES AJUNTAMENTS

Realització de qualsevol sol·licitud de manifestació sobre qualsevol tipus de requeriment o sanció administrativa a l'autoritat corresponent.

 

És habitual que s'hagi de complementar  amb plànols, fotografies, etc.

PERMISOS D'OBRES

És el document requerit per l'Administració Local per la realització de qualsevol tipus de instal·lació, reforma, construcció, etc.

 

Aquest tràmit conjuntament amb el pagament de les taxes corresponents, ens atorgarà l'autorització Municipal per a la execució de les obres.

 

Per l'obtenció d'alguns permisos caldrà adjuntar plànols, fotografies, formularis, etc...

RECURSOS LEGALS

Realització de qualsevol sol·licitud de manifestació sobre qualsevol tipus de requeriment o sanció administrativa a l'autoritat corresponent.

 

És habitual que s'hagi de complementar  amb plànols, fotografies, etc.

LEGALITZACIÓ

El nostre equip d'Enginyers i Arquitectes compten amb l'experiència adquirida i els antecedents acumulats al llarg dels anys de dedicar-nos única i exclusivament a realitzar projectes i legalitzacions de garatges.

 

Aquest fet, és el que ens dóna un gran avantatge respecte a les enginyeries que es dediquen a tots els sectors en general.

LLICÈNCIES D'ACTIVITAT

És molt habitual estar en una situació d'il·legalitat que pot comportar  tot un seguit de greus conseqüències.

Alguns usuaris confonen el tenir una Llicència de Gual, estar al corrent del pagament del IBI o, fins i tot, el fet de disposar d'una assegurança pel garatge com a sinònim de tenir  la Llicència d’Activitat o d’obertura.

 

Aquest fet provoca que els propietaris dels garatges estiguin en un estat de falsa tranquil·litat, que en cas de requeriment per part de l'Ajuntament per algun tipus de denúncia o en cas d’ accident (els incendis són comuns als garatges), els situa en una situació d’ il·legalitat amb tots els problemes que comporta.

 

La Llicència d'Activitat és l'expedient administratiu que té caràcter legal i la documentació necessària per tal de poder exercir una determinada activitat pública o privada com és en el nostre cas un garatge.

 

Legalitzar garatges  d’antiga construcció (disposar de la Llicència d'Activitat)és la nostra especialitat. L’experiència i els antecedents ens avalen alhora d’adaptar a la Normativa Municipal actual aquest garatges, que en molts dels casos representa una tasca prou difícil.

 

Per la seva tramitació es requereix la creació d'un projecte tècnic (memòria tècnica) realitzat pels nostres Enginyers amb el càlcul de risc de l'activitat, aixecament de plànols, fotos  i mesures correctores a realitzar per obtenir la llicència Municipal.

 

Segons les característiques del garatge també s'haurà de realitzar un Projecte Elèctric.

LLICÈNCIA GUAL

La Licència de Gual és l'expedient administratiu que té caràcter legal que autoritza l'accés de vehicles a un local.

 

En l'actualitat, cosa que no succeïa abans,  per l'obtenció de la Llicència de Gual és imprescindible disposar d'una Llicència d'Activitat que requereixi l'accés de vehicles al local com és el  cas dels garatges.

 

És molt habitual  disposar  i tributar  anualment la Llicència de Gual d'un pàrking  i no disposar de Llicència d'activitat, situant-nos segons la llei actual en una irregularitat legal greu.

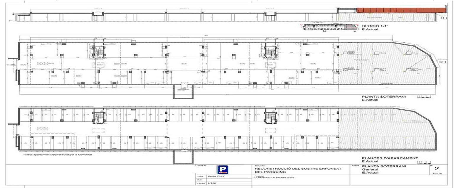
PROJECTES D'ÚS

El Projecte és l'informe que realitzat per els nostres Enginyers col·legiats,  determinarà les necessitats i modificacions ens les instal·lacions  a fer en el garatge per tal de poder obtenir la Llicència d'Activitat.

Consta del propi informe així com de plànols, fotografies, etc...

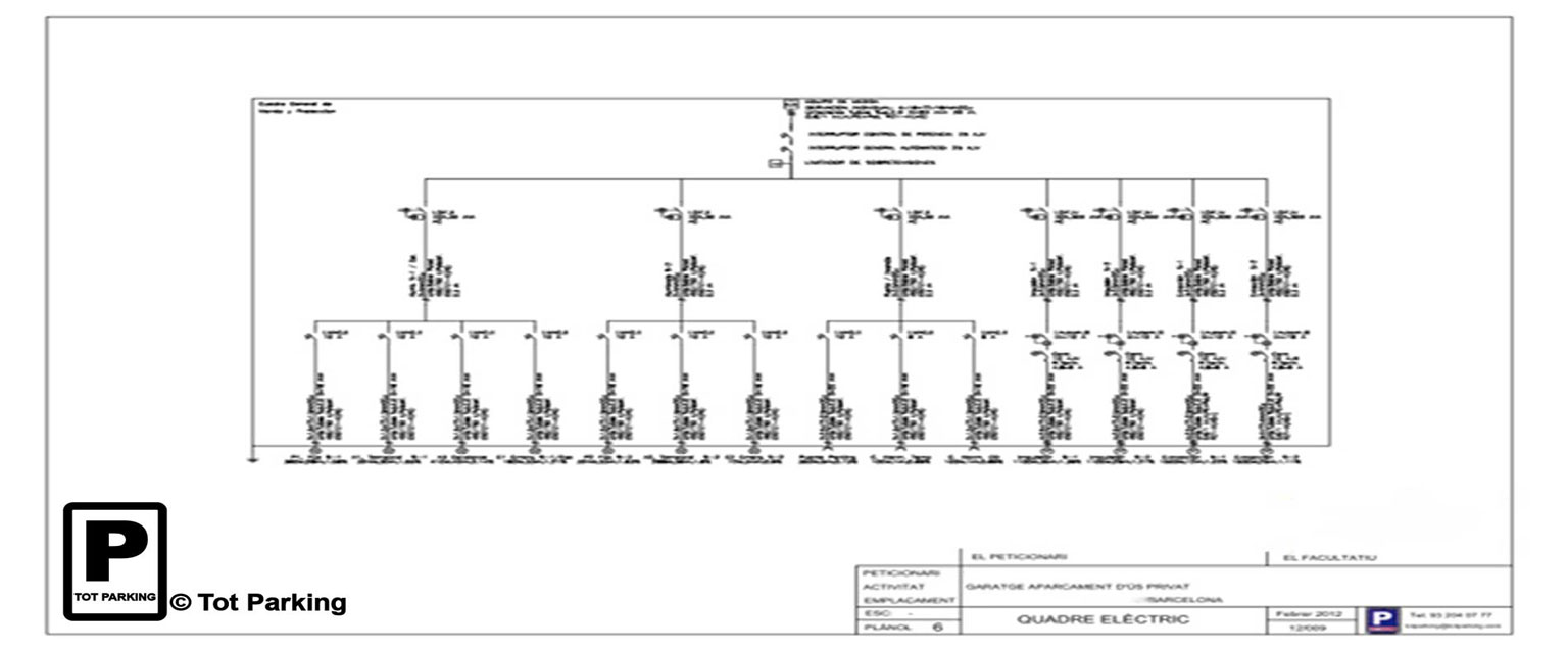
PROJECTES ELÈCTRICS

El Projecte Elèctric és l'informe que realitzat pels nostres Enginyers col·legiats que determina les necessitats elèctriques, instal·lacions, proteccions, enllumenat, potència de la màquinaria necessària i les modificacions  a fer en el garatge per tal de poder obtenir la Llicència d’Activitat o d’obertura.

Consta del propi informe així com de plànols, fotografies, etc... i és complement del Projecte d'ús.

 

Tel. +34  93 20 40 777    TotParking@totparking.com

Barcelona - Catalunya - Spain

COL·LABOREN:

Especialistes en el Món del Garatge
Icono Gestió
Especialistes en el Món del Garatge
Icono Gestió